• El proyecto, incluido en el Plan Provincial de Cooperación Municipal 2024-2025, prevé un nuevo espacio para actividades deportivas, culturales y sociales con un plazo de ejecución de diez meses

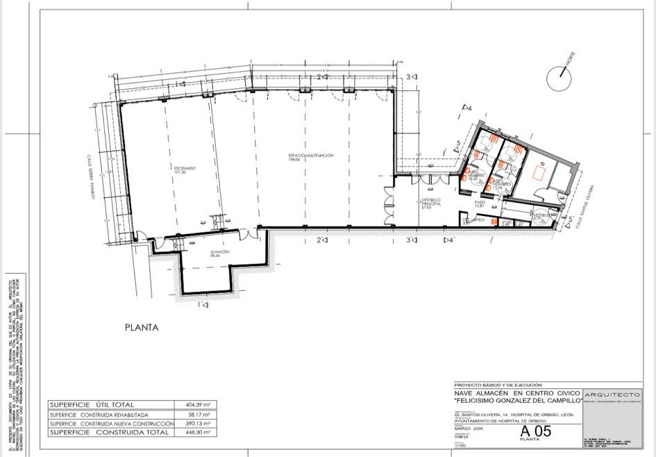
El ayuntamiento de Hospital de Órbigo ha sacado a licitación la construcción de un pabellón multiusos en el Centro Cívico Felicísimo González del Campillo, una actuación destinada a dotar a la localidad de un nuevo espacio para actividades sociales, culturales y deportivas. El anuncio de licitación se publicó el 28 de enero en la Plataforma de Contratación del Sector Público.

El proyecto cuenta con un presupuesto base de licitación de 450.000 euros, IVA incluido —371.900,82 euros sin impuestos— y contempla un plazo de ejecución de diez meses. La contratación se tramita mediante procedimiento abierto simplificado.

La actuación forma parte del Plan Provincial de Cooperación Municipal 2024-2025 y responde a la necesidad de disponer de un edificio polivalente para diferentes usos en el municipio. Según la memoria del proyecto, el futuro pabellón se concibe como un espacio que permita acoger actividades gimnásticas, exposiciones, reuniones, muestras gastronómicas u otros eventos colectivos.

El nuevo edificio se ubicará en el entorno del centro cívico con el objetivo de facilitar su acceso a los vecinos, especialmente a personas mayores o con problemas de movilidad, evitando desplazamientos a otros puntos del municipio para participar en este tipo de actividades.